UA-48659556-1

Ob es nun die Wanderwege rund um Schmallenberg und Lennestadt sind oder die weltweit bekannten Wintersportanlagen in Winterberg - unsere gesamte Region zeichnet sich durch zahlreiche Möglichkeiten der Freizeitgestaltung aus und präsentiert sich zudem wirtschaftlich stark und mit besten Chancen am Arbeitsmarkt. Unter anderem in der Tourismusbranche werden stets ambitionierte Fachkräfte und begeisterte Quereinsteiger gesucht.
Dies sind beste Voraussetzungen für alle, die sich mit dem Gedanken tragen, eine Immobilie in der Region rund um Schmallenberg zu kaufen. Mit unserem Immobilienangebot und unseren Leistungen für Interessenten gehen Sie einen großen Schritt in Richtung Ihrer persönlichen Traumimmobilie. Wir bieten Ihnen eine bunte Mischung aus Immobilien aller Art, in jeder Größe und für jedes Budget.
Alle Objekte, die sich aktuell in unserem Portfolio befinden, haben wir in der nachfolgenden Übersicht für Sie aufgelistet. Sind Sie sich noch nicht sicher, welche Art Ihr neues Domizil besitzen soll, finden Sie hier Inspiration und die Möglichkeit, die verschiedensten Objekte direkt miteinander zu vergleichen.
| externe Objnr | 2019-003-A10 |
| Status | Archiviert |
| Nutzungsart | Wohnen |
| Vermarktungsart | Kauf |
| Objektart | Wohnung |
| Objekttyp | Dachgeschoss |
| PLZ | 57392 |
| Ort | Schmallenberg |
| Straße | Am Bahnhof |
| Hausnummer | 7 |
| Land | Deutschland |
| Regionaler Zusatz | Schmallenberg |
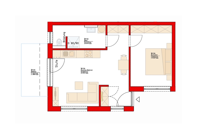
| Wohnfläche | 50 m² |
| Nutzfläche | 5 m² |
| Anzahl Zimmer | 2 |
| Anzahl Schlafzimmer | 1 |
| Anzahl Badezimmer | 1 |
| Befeuerung | Gas, Alternativ |
| Heizungsart | Zentralheizung |
| Fahrstuhl | Personenaufzug |
| Stellplatzart | Carport |
| Dachform | Flachdach |
| Fahrradraum | Ja |
| ruhig | Ja |
| sonnig | Ja |
| Balkon | Ja |
| Balkon/Terrasse | Ja |
| Barrierefrei | Ja |
| externe Objnr | 2019-003-A10 | Status | Archiviert |
| Nutzungsart | Wohnen | Vermarktungsart | Kauf |
| Objektart | Wohnung | Objekttyp | Dachgeschoss |
| PLZ | 57392 | Ort | Schmallenberg |
| Straße | Am Bahnhof | Hausnummer | 7 |
| Land | Deutschland | Regionaler Zusatz | Schmallenberg |
| Wohnfläche | 50 m² | Nutzfläche | 5 m² |
| Anzahl Zimmer | 2 | Anzahl Schlafzimmer | 1 |
| Anzahl Badezimmer | 1 | Befeuerung | Gas, Alternativ |
| Heizungsart | Zentralheizung | Fahrstuhl | Personenaufzug |
| Stellplatzart | Carport | Dachform | Flachdach |
| Fahrradraum | Ja | ruhig | Ja |
| sonnig | Ja | Balkon | Ja |
| Balkon/Terrasse | Ja | Barrierefrei | Ja |
Energieausweis
Art: Bedarfsausweis
Endenergiebedarf: 40.00 kWh/(m²*a)
Baujahr lt. Energieausweis: 2020
Wesentlicher Energieträger: Blockheizkraftwerk
Klasse: A
Ob Altbau in Form eines Bauernhofes oder eines Mehrgenerationenhauses mit dem Charme vergangener Epochen oder energieeffizienter und barrierefreier Neubau - unser Immobilienportfolio beinhaltet für jeden Anspruch die geeigneten Objekte. Wir bieten Ihnen freistehende Einfamilienhäuser und Bungalows ebenso wie Zweifamilienhäuser und historische Fachwerkhäuser, Doppelhaushälften in moderner Bauweise oder Landhäuser mit klassischer Raumaufteilung und Nebengebäuden.
Ist ein Haus nicht Ihre erste Wahl, so finden Sie in unserem Angebot selbstverständlich auch Wohnungen unterschiedlichster Couleur, von kompakten 2-Zimmer Wohnungen für Singles und Paare bis hin zu geräumigen 4-Zimmer Wohnungen und Penthouse-Wohnungen für die kleine und große Familie. Lassen Sie sich von unseren Immobilien begeistern, die Sie zum fairen Preis über uns erwerben können, die sich durch eine ruhige oder naturnahe Lage auszeichnen und Ihnen beste Chancen auf individuelle Entfaltung bieten.

Zu jedem von uns angebotenen Objekt finden Sie in der nachfolgenden Übersicht ein ausführliches und aussagekräftiges Exposé. Darin haben wir für Sie alle relevanten Informationen zum Objekt auf kompakte Art und Weise zusammengefasst. Dadurch bieten wir Ihnen die Möglichkeit, sich bereits online umfassend zu Ihrem Traumobjekt zu informieren.
Erfahren Sie zum Beispiel alles über die Raumaufteilung, die Wohnfläche und Grundstücksgröße sowie die Ausstattung der Immobilie. Entdecken Sie das Objekt auf zahlreichen Fotografien sowie bei einem virtuellen Rundgang aus allen Perspektiven und entscheiden Sie, ob das Haus oder die Wohnung sich für Ihre Zwecke eignet.
Zudem finden Sie im Exposé wichtige Angaben zur Lage der Immobilie sowie der Infrastruktur in ihrer Umgebung und selbstverständlich den Kaufpreis. Haben Sie ein Haus oder eine Wohnung gefunden, die Ihren Vorstellungen entspricht, nehmen Sie Kontakt zu uns auf. Wir geben Ihnen bei einem Besichtigungstermin vor Ort gerne die Gelegenheit, sich hautnah von den Vorteilen des Objekts zu überzeugen.
Sind Sie sich bereits sicher, welche Art von Immobilie Sie suchen, dann kürzen Sie diese Suche doch einfach ab. Wir bieten Ihnen auf weiteren Seiten geordnete Übersichten unter anderem für Häuser, Wohnungen und Neubauobjekte rund um Schmallenberg und Winterberg. Dort werden Sie noch schneller fündig.
info@kotthoff-immobilien.de
Tel.: 02972 / 36486-0
Ihr starker Partner im Sauerland