UA-48659556-1
02972 / 36486-0 info@kotthoff-immobilien.de
Immobiliendetails

Exklusive Gewerbeeinheiten im Zentrum von Schmallenberg

externe Objnr 2021-017-G03
Status Archiviert
Nutzungsart Gewerbe
Vermarktungsart Miete
Objektart Laden/Einzelhandel
Objekttyp Ladenlokal
PLZ 57392
Ort Schmallenberg
Land Deutschland
Regionaler Zusatz Schmallenberg
Nutzfläche 118 m²
Gesamtfläche 183 m²
Lagerfläche 65 m²
Verkaufsfläche 108 m²
Nebenfläche 10 m²
Befeuerung Erdwärme
Heizungsart Fußbodenheizung
Fahrstuhl Kein Fahrstuhl
Dachform Krüppelwalmdach
Unterkellert Ja
Barrierefrei Ja
externe Objnr 2021-017-G03 Status Archiviert
Nutzungsart Gewerbe Vermarktungsart Miete
Objektart Laden/Einzelhandel Objekttyp Ladenlokal
PLZ 57392 Ort Schmallenberg
Land Deutschland Regionaler Zusatz Schmallenberg
Nutzfläche 118 m² Gesamtfläche 183 m²
Lagerfläche 65 m² Verkaufsfläche 108 m²
Nebenfläche 10 m² Befeuerung Erdwärme
Heizungsart Fußbodenheizung Fahrstuhl Kein Fahrstuhl
Dachform Krüppelwalmdach Unterkellert Ja
Barrierefrei Ja
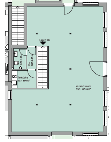
Objektbeschreibung: Folgende Gewerbeinheit mit barrierefreiem Zugang steht dem Mieter zur Verfügung:

Ladenlokal 2 (gesamt ca. 183 m²):
EG: Verkaufsraum ca. 107,66 m²
EG: Teeküche ca. 4,90 m²
EG: WC ca. 2,97 m²
EG: Flur ca. 2,27 m²
KG: Lagerfläche ca. 65,31 m²

Die voraussichtliche Fertigstellung / Bezugsfertigkeit der Räumlichkeiten wird Sommer 2022 sein.

Die Übergabe der Gewerbeeinheiten erfolgt im „veredeltem Rohbau“. Um die Gestaltung der Böden und Wände hat sich der Mieter zu kümmern; ebenso um die Beleuchtung. Die Mietlaufzeiten sind individuell zu besprechen.

 
Energieausweis
Art: Bedarfsausweis
Gültig bis: 19.07.2030
Endenergiebedarf: 21.00 kWh/(m²*a)
Baujahr lt. Energieausweis: 2020
Wesentlicher Energieträger: Erdwärme
Klasse: A+

Lage: Lage:
Der Luftkurort Schmallenberg ist eine Stadt an der Südgrenze des Hochsauerlandkreises (Regierungsbezirk Arnsberg). Die typische Mittelgebirgslandschaft Schmallenbergs wird im Süden durch den Hauptkamm des Rothaargebirges und im Nordosten durch den Höhenzug der Hunau geprägt. Die angebotene Gewerbeeinheit liegt zentral in der Schmallenberger Altstadt in hoch frequentierter Lage. Einkaufsmöglichkeiten sind fußläufig in unmittelbarer Nähe zu finden; eine Bushaltestelle in etwa 50m. Schmallenberg bietet eine komplette Infrastruktur – angefangen von einem Ärztehaus über Kindergärten bis hin zu weiterführenden Schulen.

Das Schmallenberger Sauerland ist ein Paradies für Naturliebhaber, Wanderer und Wintersportler. Wanderwege sind in wenigen Minuten fußläufig zu erreichen. Der bekannte Wintersportort Winterberg ist in 25 Minuten mit dem Auto zu erreichen. Auch Golffreunde finden in naher Umgebung attraktive Golfplätze. Die A46 nach Dortmund ist ca. 30 Minuten und die A4 nach Köln/Frankfurt ca. 45 Minuten entfernt. Die niederländische Grenze erreichen Sie in nur 2 Stunden Fahrzeit.

Kennzahlen zur Stadt Schmallenberg: Einwohner 25.089 (Stand 31.12.2019)
Fläche gesamt: 303,01 km²
Einwohner Kernstadt: 6099 (Stand 31.12.2019)
Kaufkraft: ca. 529,9 Mio. (Prognose für 2020)
Einzelhandelsumsatz ca. 131,4 Mio. (Stand Okt. 2020)

Brachen im direkten Umfeld:

• Mode und Schuhfachhandel • Optiker • Bäckerei & Konditorei
• Elektrofachhandel • Juwelierfachgeschäft • Metzgerei
• Haushaltswarenfachhandel • Drogerie • Ärzte & Apotheken
• Blumenfachhandel • Friseur • Banken & Versicherungen
• Tierbedarfsgeschäft • Reisebüro • Krankenkassen
• Orthopädiefachgeschäft • Lotto & Tabakwaren • Hotels & Gastronomie
• Einrichtungsgeschäft • Werbeagenturen & Druckerei • Rechtsanwälte

Touristische Kennzahlen:

Jahresübernachtungen laut LDS: 765.864 Übernachtungen (in 2018)
Schmallenberg zählt zu den Top 10 Destinationen in NRW
Sonstiges: Sonstiges:
Im Falle der Anmietung ist eine Kaution in Höhe von 3 Monatskaltmieten in bar, als Bürgschaft oder in Form einer Kautionsversicherung beim Vermieter zu hinterlegen!


Hinweis:
Alle Informationen wurden vom Makler mit der notwendigen Sorgfalt veröffentlicht. Da wir meist auf Informationen der Auftraggeber angewiesen sind, können wir keine Gewähr bzw. Garantie für die Richtigkeit übernehmen.


Allgemeine Geschäftsbedingungen:
Unsere bei diesem Angebot zugrunde liegenden Allgemeinen Geschäftsbedingungen können in unseren Geschäftsräumen oder auf unserer Homepage unter dem Punkt „Impressum“ eingesehen werden.

Ihr schneller Kontakt zu uns

info@kotthoff-immobilien.de
Tel.: 02972 / 36486-0

Immobiliensuche

Aktuelle Informationen

 

Kotthoff Immobilien

Ihr starker Partner im Sauerland